Landelijke tuin
Een landelijk plekje midden in een woonwijk
600 m2 - vrijstaande woning
Gelderland
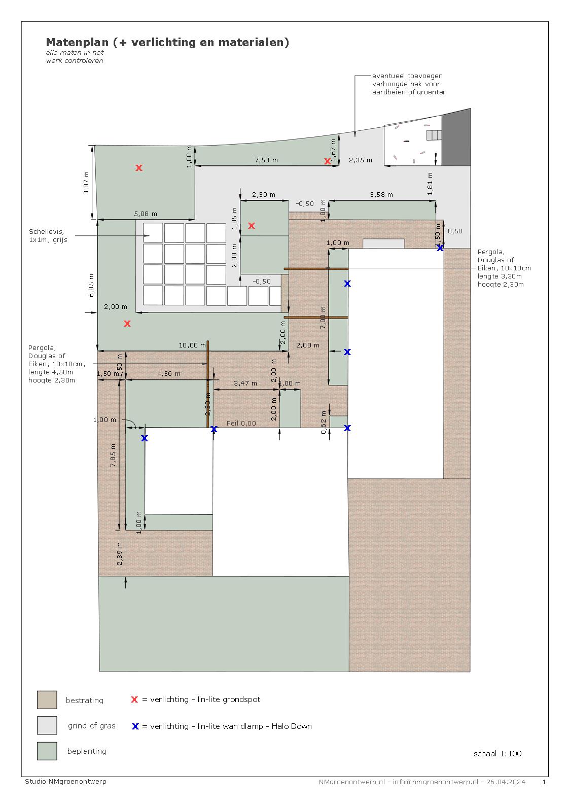
De eigenaren van deze tuin wilden graag een nieuwe indeling van de tuin nadat ze een grote schuur tegen het huis geplaatst hadden. De schuur was nogal prominent aanwezig en zorgde er voor dat de tuin als geheel niet meer klopte. Om de schuur minder aanwezig te maken wordt er een pergola tegenaan gezet zodat de zwarte wand minder opvalt. Daarnaast komt een een verhoogd terras rondom het huis en de schuur zodat het meer een geheel wordt. Met een paar trappetjes kun je dan verder de tuin in naar een lager gelegen terras die omringd wordt door groene borders. Ook is er ruimte voor een kippenren en een plek om het haardhout op te bergen. De beplanting zal bestaan aan prachtige bloeiers en fruitbomen/struiken zodat je een landelijke sfeer krijgt. Er zal gebruikt worden gemaakt van grind, klinkers en natuurlijke terrastegels om een gezellige en landelijke sfeer te krijgen.